Étape 1 sur 11
Avant de poursuivre dans la procédure, veuillez vous assurer que vous avez tous les documents nécessaires à portée de main. Ces documents incluent :
Contact
Afin de nous aider à mieux comprendre vos besoins, nous vous demandons de bien vouloir sélectionner le type d’habitation que vous occupez actuellement. Cette information nous permettra de vous fournir les informations les plus précises et les plus adaptées à vos besoins.
Sélectionnez le type de borne de chargement approprié pour vos besoins, il est important de prendre en compte plusieurs facteurs tels que le type de véhicule électrique que vous possédez, l’emplacement où la borne sera installée, et les fonctionnalités supplémentaires que vous souhaitez intégrer.
Il est important de choisir les accessoires adéquats pour votre borne de chargement si nécessaire. Il est recommandé de consulter un professionnel pour vous aider à faire votre choix.
Il est important de choisir la bonne borne de chargement en fonction de vos besoins et de son emplacement (extérieur ou intérieur) et de ses fonctionnalités supplémentaires.
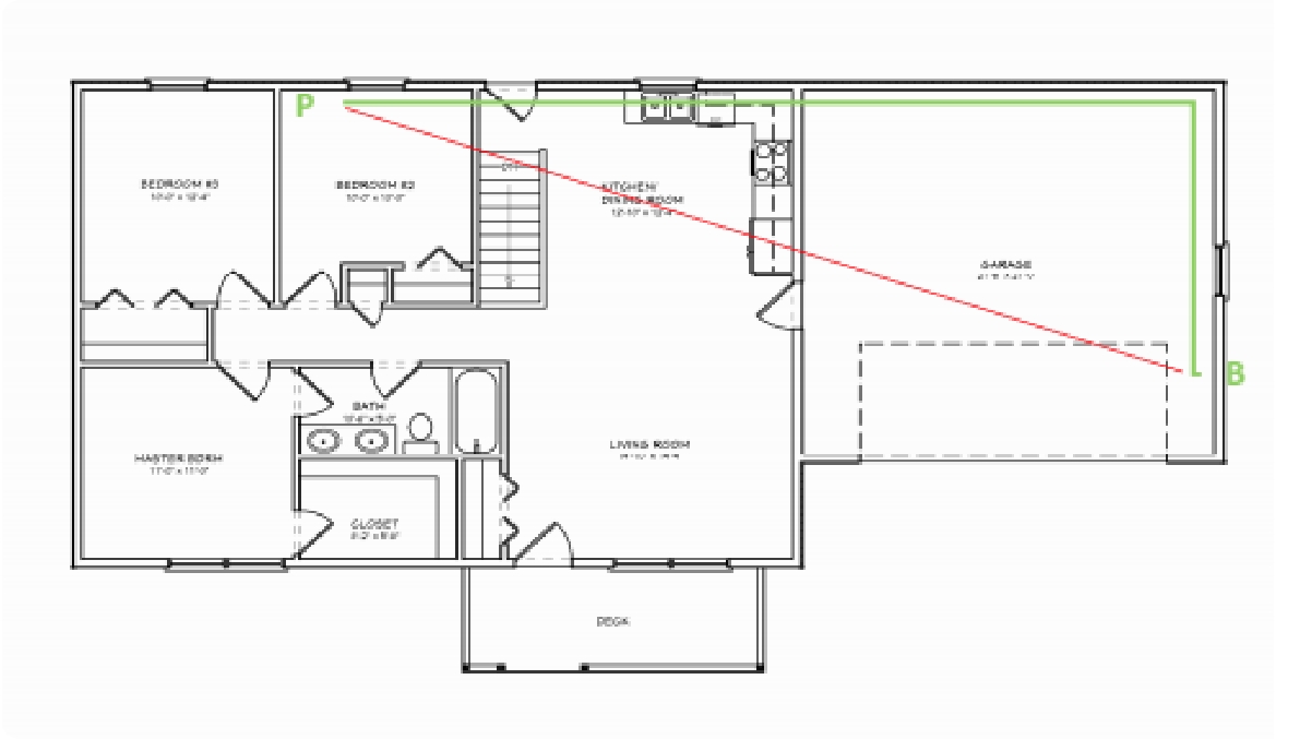
Une fois l’emplacement du panneau P et de la borne B déterminés, la longueur du câble doit être calculé à partir des murs extérieurs de votre propriété. (La ligne verte représente la bonne façon de faire, la ligne rouge la mauvaise).